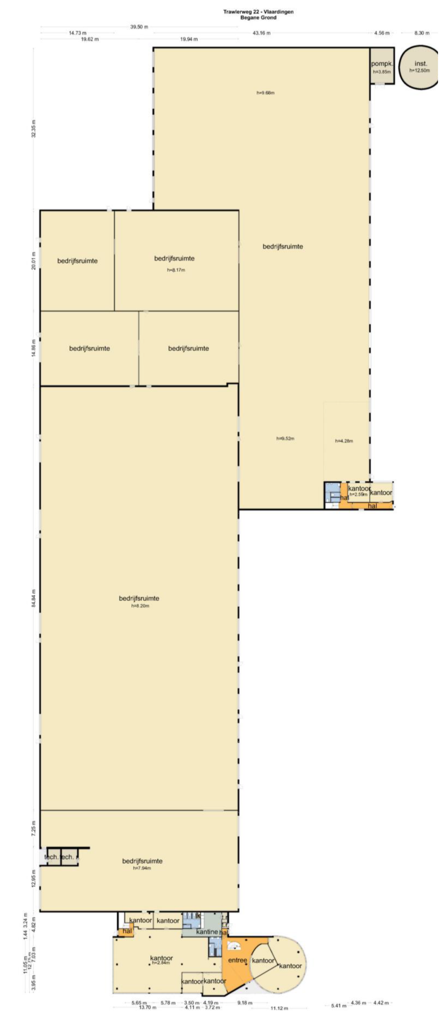
Overzicht GUNSTIG GELEGEN CROSS-DOCK GEBOUW, MET RUIM BUITENTERREIN. In het hart van het Rotterdams havengebied ligt de Trawlerweg 22, een veelzijdig bedrijfspand in Vlaardingen. Het warehouse onderscheidt zich door zijn flexibele indeling en uitgebreide laadmogelijkheden, waardoor het perfect geschikt is voor efficiënte cross-docking operaties en diverse andere gebruiksdoeleinden. De kracht van deze locatie schuilt in de strategische ligging en directe nabijheid van belangrijke transportroutes. Met de A4 en A20 binnen handbereik profiteert het pand van uitstekende verbindingen met Rotterdam, Den Haag, Amsterdam en de Rotterdamse haven. De combinatie van functionaliteit, bereikbaarheid en flexibiliteit maakt de Trawlerweg 22 tot een interessante optie voor ondernemingen die op zoek zijn naar een toekomstbestendige bedrijfslocatie in het hart van de Randstad. In nader overleg is verhuur mogelijk vanaf ca. 3.000 m². UNIQUE SELLING POINTS Cross-dock configuratie voor gestroomlijnde operaties Uitgebreide buitenruimte voor manoeuvreren en opslag Prominent kantoorgedeelte ter ondersteuning van bedrijfsfuncties Flexibele indeling geschikt voor uiteenlopende bedrijfsactiviteiten LOCATIE Het bedrijfsobject is gunstig gesitueerd op het bedrijventerrein ’t Scheur, langs de Nieuwe Waterweg in Vlaardingen. Deze strategische locatie biedt uitzonderlijke toegang tot het nationale snelwegennetwerk. De Beneluxtunnel en de recent geopende Blankenburgtunnel zorgen voor directe verbindingen met de Rotterdamse haven en verder. De rijkswegen A20 en A4 zijn binnen 5-10 autominuten bereikbaar, wat een naadloze verbinding met de Randstad en de rest van Nederland garandeert. Via de Maassluissedijk en de Marathonweg is de A20 snel te bereiken, wat de logistieke efficiëntie verder vergroot. Bovendien ligt het metrostation Vlaardingen-West op ongeveer 10-15 minuten loopafstand, wat zorgt voor uitstekende openbaar vervoerverbindingen. Deze combinatie van weg- en OV-verbindingen maakt de locatie ideaal voor bedrijven die waarde hechten aan optimale bereikbaarheid en connectiviteit. OPPERVLAKTES Circa 9.693 m² is beschikbaar voor verhuur en is als volgt verdeeld: Bedrijfsruimte: 8.536 m² Mezzanine: 186 m² Kantoorruimte: 971 m² De kantoorruimte is verdeeld over de begane grond en de eerste verdieping. In nader overleg is de bedrijfsruimte op te splitsen, waardoor huur vanaf ca. 3000 m² mogelijk is. Parkeren: Het complex beschikt over 30 parkeerplaatsen op eigen terrein. Tevens biedt het ruime buitenterrein parkeergelegenheid voor een aanzienlijk aantal vrachtwagens. OPLEVERINGSNIVEAU Bedrijfsruimte: – 28 loading docks – 16 overheaddeuren op maaiveld – Vrije hoogte van circa 7.5 en 11.5 meter – Maximale vloerbelasting circa 3.000 kg/m² – Sprinkler installatie – Brandalarm installatie met brandslangen en noodverlichting – Loodskantoor – Kantine – Lockerruimte Kantoorruimte: – Entree met ontvangstruimte – Voldoende daglichttoetreding – Systeemplafond met verlichting – Diverse spreekkamers – Pantry Buitenterrein: – Verhard middels klinkers en deels geasfalteerd – Afgesloten door middel van hekwerk – 2 ingangen HUURUITGANGSPUNTEN Huuringangsdatum: Nader overeen te komen. Huurprijs: Op aanvraag. Servicekosten: Nader te bepalen. Huurtermijn: 5 jaar met verlengingsperioden van telkens 5 jaar. Huurbetaling: Per kwartaal vooruit. Huurindexering: Jaarlijks, voor het eerst 1 (één) jaar na huuringangsdatum, op basis van het maandprijsindexcijfer volgens de consumentenprijsindex CPI reeks CPI alle huishoudens (2015=100, dan wel meest recente tijdsbasis), gepubliceerd door het CBS. Huurovereenkomst : Huurovereenkomst model Citylink, gebaseerd op ROZ model 2015. Zekerheidsstelling: Bankgarantie of waarborgsom ter grootte van tenminste drie maanden huur inclusief servicekosten en BTW. BTW: Verhuurder wenst te opteren voor BTW-belaste huur en verhuur. Ingeval huurder de BTW niet kan verrekenen, zal de huurprijs in overleg met huurder worden verhoogd ter compensatie van de gevolgen van het vervallen van de mogelijkheid om te opteren voor BTW-belaste huur. Lees verder Eigenschappen Type Bedrijfsruimte Oppervlakte 9.693 m² Clear. Clever. Committed. Johan de Haan Director industrial & logistics +31 (0)10 511 99 55 Get in Touch Locatie Gerelateerd aanbod 1 / Pijnacker Weteringweg 14-24 Bedrijfsruimte 78 m² Hellevoetsluis Marconiweg 25 Bedrijfsruimte 100 m² Schiedam Koolhovenstraat 9-11 Bedrijfsruimte 950 m² Hoogvliet Rotterdam Mandenmakerstraat 188 Bedrijfsruimte 830 m²